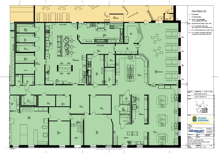
Objektet är en restaurangskola med bageri, kallkök och varmkök. Dessutom finns ett tillagningskök med kapacitet på 800 portioner. Planlösningar är framtagna i nära samarbete med lärare från restaurangskolan och Måltidsservice.
Objektet är en restaurangskola med bageri, kallkök och varmkök. Dessutom finns ett tillagningskök med kapacitet på 800 portioner. Planlösningar är framtagna i nära samarbete med lärare från restaurangskolan och Måltidsservice.