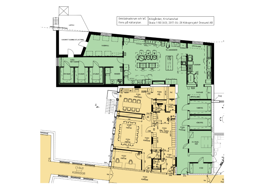
Together with Sesam Arkitektkontor AB we have developed a construction plan for the preparation kitchen at Allögården in Kristianstad. The number of servings is about 700, most of which are shipped to other locations.
Together with Sesam Arkitektkontor AB we have developed a construction plan for the preparation kitchen at Allögården in Kristianstad. The number of servings is about 700, most of which are shipped to other locations.